ЗДАЄТЬСЯ В ОРЕНДУ КОМЕРЦІЙНЕ ПРИМІЩЕННЯ (№ 1-569-483)
Ціна: 15 000 грн. + комунальні

Адреса: Мазепи, Львівська
Характеристики
| Ціна: | 15 000 грн. + комунальні |
|---|---|
| № об'єкта: | 1-569-483 |
| Тип: | торгівельні площі, кафе, бар, ресторан, об'єкт сфери послуг, інше |
| Поверх: | 2 / 2 |
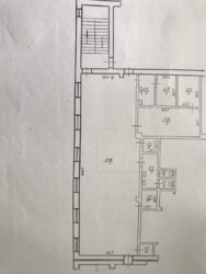
| Площа: | 140 м2 |
| ОПАЛЕННЯ: | індивідуальне (електр.) |
Опис
Здається в оренду приміщення на другому поверсі площею 140 м.кв. Район нова шахтарська. Приміщення з ремонтом. Є санвузол, кабінети, підсобні приміщення.



